Hus ritade exklusivt för Tynäs Sjöglänta
Hus ritade exklusivt för Tynäs Sjöglänta
De fyra hustyperna i kollektionen för Tynäs Sjöglänta har flera saker gemensamt. Stora ytor att umgås på, naturligt ljus som flödar in i rummen och funktionalitet som förenklar vardagen. Men de har också sina särskilda egenskaper och identiteter. Vilket känns som hemma för dig?
Villa Sjöglänta

161 kvm familjedröm i fantastiskt ljus
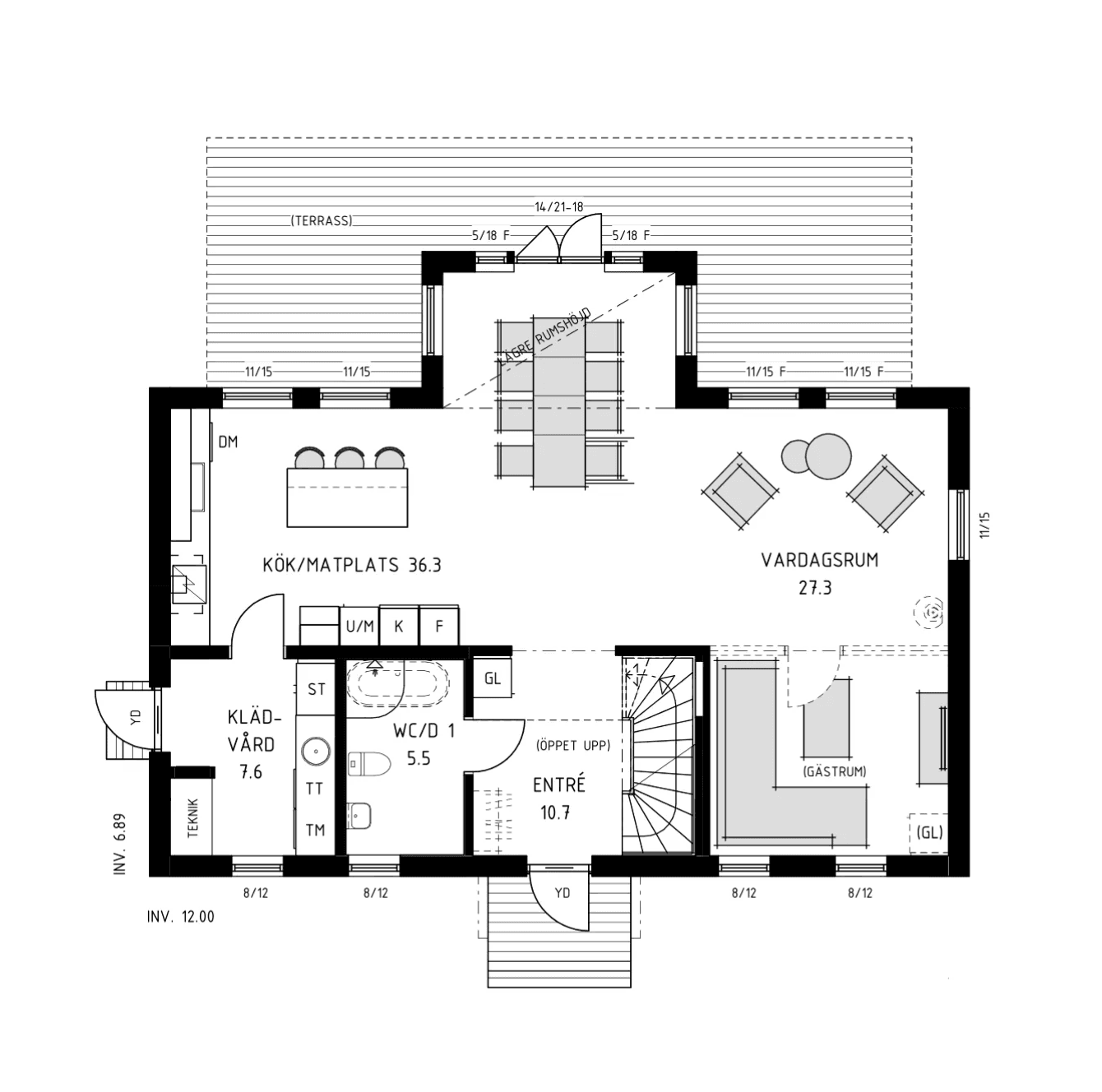
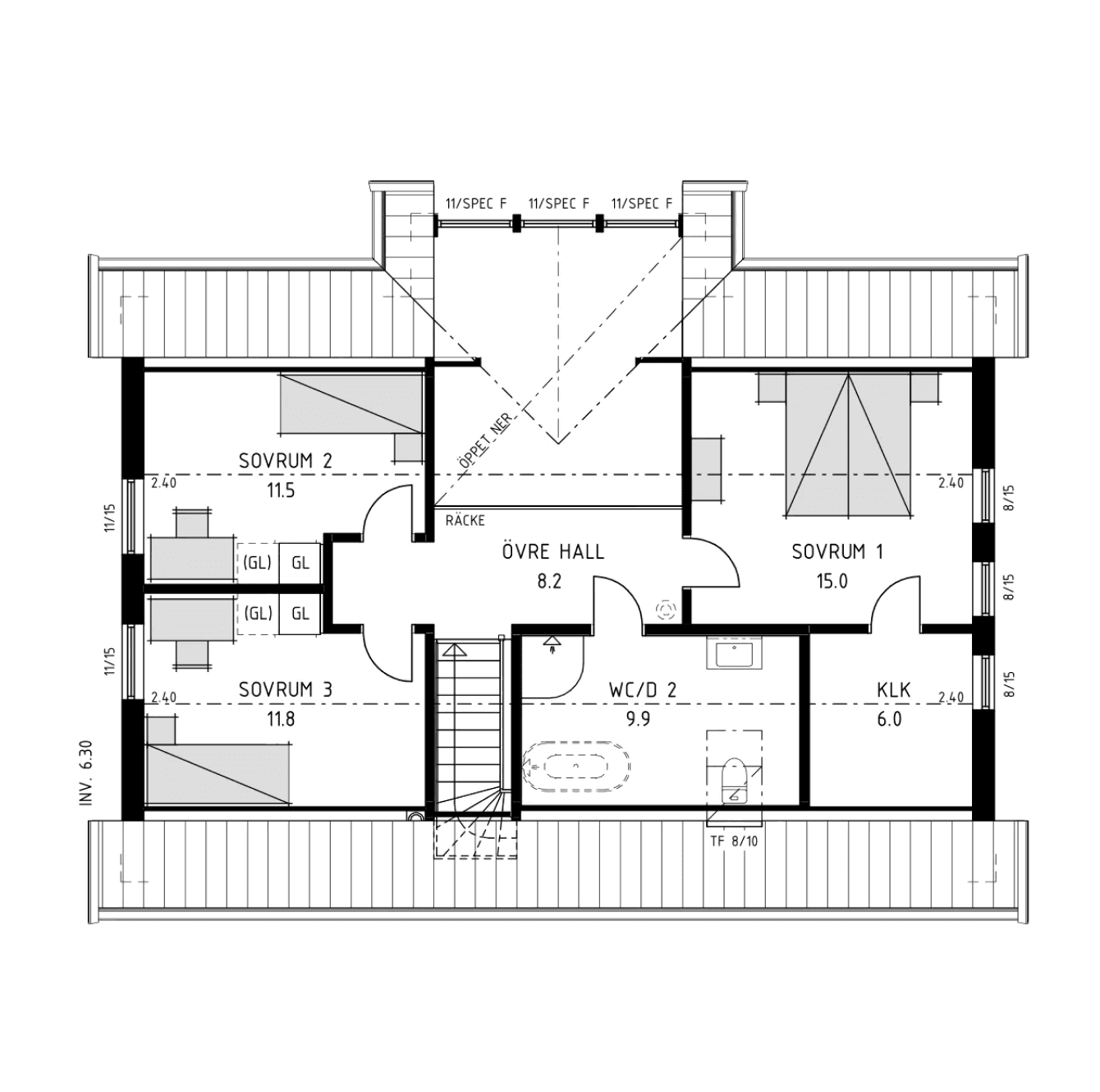
Är vi inomhus eller utomhus? Den frågan ställer man sig lätt i Villa Sjögläntas vardagsrum. Ett stort fönsterparti bjuder in både ljus och grönska i en- och en halvplansvillan. Den lilla familjen trivs bra i en- och en halvplansvillan, där ovanvåningen rymmer sovrum till alla, walk-in-closet och ett väl tilltaget badrum, medan nedervåningens öppna planlösning mellan kök, matplats och vardagsrum skapar en härlig social atmosfär för besök från släkt och vänner.
Villa Sjöglänta
HUSTYP
1,5-plan
ANTAL RUM
6 rum och kök
ANTAL SOVRUM
4 rum
BOYTA
161 kvm
FASAD
Liggande panel
TAK
Sadeltak
“Här har vi tänkt kontrast – mellan den enkla entrén och det imponerande fönster du möts av när du går in, som nästan gör vardagsrummet till ett eget orangeri.”





Villa Sjöglänta

161 kvm familjedröm i fantastiskt ljus
Är vi inomhus eller utomhus? Den frågan ställer man sig lätt i Villa Sjögläntas vardagsrum. Ett stort fönsterparti bjuder in både ljus och grönska i en- och en halvplansvillan. Den lilla familjen trivs bra i en- och en halvplansvillan, där ovanvåningen rymmer sovrum till alla, walk-in-closet och ett väl tilltaget badrum, medan nedervåningens öppna planlösning mellan kök, matplats och vardagsrum skapar en härlig social atmosfär för besök från släkt och vänner.
Villa Sjöglänta
HUSTYP
1,5-plan
ANTAL RUM
6 rum och kök
ANTAL SOVRUM
4 rum
BOYTA
161 kvm
FASAD
Liggande panel
TAK
Sadeltak
“Här har vi tänkt kontrast – mellan den enkla entrén och det imponerande fönster du möts av när du går in, som nästan gör vardagsrummet till ett eget orangeri.”





Villa Sjöglänta

161 kvm familjedröm i fantastiskt ljus
Är vi inomhus eller utomhus? Den frågan ställer man sig lätt i Villa Sjögläntas vardagsrum. Ett stort fönsterparti bjuder in både ljus och grönska i en- och en halvplansvillan. Den lilla familjen trivs bra i en- och en halvplansvillan, där ovanvåningen rymmer sovrum till alla, walk-in-closet och ett väl tilltaget badrum, medan nedervåningens öppna planlösning mellan kök, matplats och vardagsrum skapar en härlig social atmosfär för besök från släkt och vänner.
Villa Sjöglänta
HUSTYP
1,5-plan
ANTAL RUM
6 rum och kök
ANTAL SOVRUM
4 rum
BOYTA
161 kvm
FASAD
Liggande panel
TAK
Sadeltak
“Här har vi tänkt kontrast – mellan den enkla entrén och det imponerande fönster du möts av när du går in, som nästan gör vardagsrummet till ett eget orangeri.”





Villa Sjöglänta

161 kvm familjedröm i fantastiskt ljus
Är vi inomhus eller utomhus? Den frågan ställer man sig lätt i Villa Sjögläntas vardagsrum. Ett stort fönsterparti bjuder in både ljus och grönska i en- och en halvplansvillan. Den lilla familjen trivs bra i en- och en halvplansvillan, där ovanvåningen rymmer sovrum till alla, walk-in-closet och ett väl tilltaget badrum, medan nedervåningens öppna planlösning mellan kök, matplats och vardagsrum skapar en härlig social atmosfär för besök från släkt och vänner.
Villa Sjöglänta
HUSTYP
1,5-plan
ANTAL RUM
6 rum och kök
ANTAL SOVRUM
4 rum
BOYTA
161 kvm
FASAD
Liggande panel
TAK
Sadeltak
“Här har vi tänkt kontrast – mellan den enkla entrén och det imponerande fönster du möts av när du går in, som nästan gör vardagsrummet till ett eget orangeri.”





Villa Skärgårdsro
Villa Skärgårdsro
Villa Skärgårdsro
Villa Skärgårdsro
Villa Sjöglimt
Villa Sjöglimt
Villa Sjöglimt
Villa Sjöglimt
Villa Vattenblänk
Villa Vattenblänk
Villa Vattenblänk
Villa Vattenblänk
Nedladdningsbart material
Nedladdningsbart material
Du behöver inte vara kräsen. Det har vi redan varit.
Du behöver inte vara kräsen. Det har vi redan varit.
Ett hus ska levas i. Det behöver vara funktionellt och av kvalitativa material. Det behöver också kännas som något du kan trivas i, vara vackert att se på. Det har varit ledstjärnan när arkitekterna valt ut vilka varumärken och produkter som ska ingå till husen i Tynäs Sjöglänta, i allt från kök och badrum till golv och fönster. Att det ska vara både vackert och praktiskt.

TIDLÖST DESIGNAT KÖK
Elegant kök från Ballingslöv
Rena linjer och tidlös design med köksinredning från Ballingslöv. Som standard ingår luckan Bistro i färgerna Vit eller Pärlgrå tillsammans med en bänkskiva i laminat. Köksluckorna fungerar som handtagslösa eller med handtag från vårt utvalda sortiment. Vill du sätta en personlig prägel finns fler luckor och bänkskivor från Ballingslöv.

VACKRA OCH STARKA GOLV
Högtrycksgolv från BerryAlloc
Gjorda för att hålla en livstid – det är golven från BerryAlloc. Deras reptåliga, fuktbeständiga och koldioxidnegativa högtrycksgolv finns i flera utföranden, i färger inspirerade av den nordiska naturen. Vackra är de också, med strukturer från olika träslag, längder och dekorer. I standardpaketet finns flera utföranden du kan välja bland.

VITVAROR MED SIEMENS
Laga mat med prisvinnare
Siemens designspråk, kvalitet och funktionalitet har fått utmärkelser från flera oberoende testinstitut. I köken i husen i Tynäs Sjöglänta installeras induktionshäll, ugn, inbyggd fläkt, kyl och frys från Siemens. Klädvårdsrummen, som har egen ingång i fyra av fem husmodeller, har tvättmaskin och torktumlare från Siemens. Ett smart och pålitligt val som underlättar vardagen.

ENERGIEFFEKTIVA ELITFÖNSTER
Lång livslängd på lågenergifönster
Elitfönster förenar hantverk och estetik med funktion och gedigenhet. De är också bäst i test-vinnare i fönster som står emot oväder, olyckor och oväsen. Husen i Tynäs Sjöglänta byggs med deras aluminiumfönster med 3-glas-isolerruta – robusta träfönster klädda med aluminium på utsidan för att motstå yttre påfrestningar.

TIDLÖST DESIGNAT KÖK
Elegant kök från Ballingslöv
Rena linjer och tidlös design med köksinredning från Ballingslöv. Som standard ingår luckan Bistro i färgerna Vit eller Pärlgrå tillsammans med en bänkskiva i laminat. Köksluckorna fungerar som handtagslösa eller med handtag från vårt utvalda sortiment. Vill du sätta en personlig prägel finns fler luckor och bänkskivor från Ballingslöv.

VACKRA OCH STARKA GOLV
Högtrycksgolv från BerryAlloc
Gjorda för att hålla en livstid – det är golven från BerryAlloc. Deras reptåliga, fuktbeständiga och koldioxidnegativa högtrycksgolv finns i flera utföranden, i färger inspirerade av den nordiska naturen. Vackra är de också, med strukturer från olika träslag, längder och dekorer. I standardpaketet finns flera utföranden du kan välja bland.

VITVAROR MED SIEMENS
Laga mat med prisvinnare
Siemens designspråk, kvalitet och funktionalitet har fått utmärkelser från flera oberoende testinstitut. I köken i husen i Tynäs Sjöglänta installeras induktionshäll, ugn, inbyggd fläkt, kyl och frys från Siemens. Klädvårdsrummen, som har egen ingång i fyra av fem husmodeller, har tvättmaskin och torktumlare från Siemens. Ett smart och pålitligt val som underlättar vardagen.

ENERGIEFFEKTIVA ELITFÖNSTER
Lång livslängd på lågenergifönster
Elitfönster förenar hantverk och estetik med funktion och gedigenhet. De är också bäst i test-vinnare i fönster som står emot oväder, olyckor och oväsen. Husen i Tynäs Sjöglänta byggs med deras aluminiumfönster med 3-glas-isolerruta – robusta träfönster klädda med aluminium på utsidan för att motstå yttre påfrestningar.

TIDLÖST DESIGNAT KÖK
Elegant kök från Ballingslöv
Rena linjer och tidlös design med köksinredning från Ballingslöv. Som standard ingår luckan Bistro i färgerna Vit eller Pärlgrå tillsammans med en bänkskiva i laminat. Köksluckorna fungerar som handtagslösa eller med handtag från vårt utvalda sortiment. Vill du sätta en personlig prägel finns fler luckor och bänkskivor från Ballingslöv.

VACKRA OCH STARKA GOLV
Högtrycksgolv från BerryAlloc
Gjorda för att hålla en livstid – det är golven från BerryAlloc. Deras reptåliga, fuktbeständiga och koldioxidnegativa högtrycksgolv finns i flera utföranden, i färger inspirerade av den nordiska naturen. Vackra är de också, med strukturer från olika träslag, längder och dekorer. I standardpaketet finns flera utföranden du kan välja bland.

VITVAROR MED SIEMENS
Laga mat med prisvinnare
Siemens designspråk, kvalitet och funktionalitet har fått utmärkelser från flera oberoende testinstitut. I köken i husen i Tynäs Sjöglänta installeras induktionshäll, ugn, inbyggd fläkt, kyl och frys från Siemens. Klädvårdsrummen, som har egen ingång i fyra av fem husmodeller, har tvättmaskin och torktumlare från Siemens. Ett smart och pålitligt val som underlättar vardagen.

ENERGIEFFEKTIVA ELITFÖNSTER
Lång livslängd på lågenergifönster
Elitfönster förenar hantverk och estetik med funktion och gedigenhet. De är också bäst i test-vinnare i fönster som står emot oväder, olyckor och oväsen. Husen i Tynäs Sjöglänta byggs med deras aluminiumfönster med 3-glas-isolerruta – robusta träfönster klädda med aluminium på utsidan för att motstå yttre påfrestningar.

TIDLÖST DESIGNAT KÖK
Elegant kök från Ballingslöv
Rena linjer och tidlös design med köksinredning från Ballingslöv. Som standard ingår luckan Bistro i färgerna Vit eller Pärlgrå tillsammans med en bänkskiva i laminat. Köksluckorna fungerar som handtagslösa eller med handtag från vårt utvalda sortiment. Vill du sätta en personlig prägel finns fler luckor och bänkskivor från Ballingslöv.

VACKRA OCH STARKA GOLV
Högtrycksgolv från BerryAlloc
Gjorda för att hålla en livstid – det är golven från BerryAlloc. Deras reptåliga, fuktbeständiga och koldioxidnegativa högtrycksgolv finns i flera utföranden, i färger inspirerade av den nordiska naturen. Vackra är de också, med strukturer från olika träslag, längder och dekorer. I standardpaketet finns flera utföranden du kan välja bland.

VITVAROR MED SIEMENS
Laga mat med prisvinnare
Siemens designspråk, kvalitet och funktionalitet har fått utmärkelser från flera oberoende testinstitut. I köken i husen i Tynäs Sjöglänta installeras induktionshäll, ugn, inbyggd fläkt, kyl och frys från Siemens. Klädvårdsrummen, som har egen ingång i fyra av fem husmodeller, har tvättmaskin och torktumlare från Siemens. Ett smart och pålitligt val som underlättar vardagen.

ENERGIEFFEKTIVA ELITFÖNSTER
Lång livslängd på lågenergifönster
Elitfönster förenar hantverk och estetik med funktion och gedigenhet. De är också bäst i test-vinnare i fönster som står emot oväder, olyckor och oväsen. Husen i Tynäs Sjöglänta byggs med deras aluminiumfönster med 3-glas-isolerruta – robusta träfönster klädda med aluminium på utsidan för att motstå yttre påfrestningar.

TIDLÖST DESIGNAT KÖK
Elegant kök från Ballingslöv
Rena linjer och tidlös design med köksinredning från Ballingslöv. Som standard ingår luckan Bistro i färgerna Vit eller Pärlgrå tillsammans med en bänkskiva i laminat. Köksluckorna fungerar som handtagslösa eller med handtag från vårt utvalda sortiment. Vill du sätta en personlig prägel finns fler luckor och bänkskivor från Ballingslöv.

VACKRA OCH STARKA GOLV
Högtrycksgolv från BerryAlloc
Gjorda för att hålla en livstid – det är golven från BerryAlloc. Deras reptåliga, fuktbeständiga och koldioxidnegativa högtrycksgolv finns i flera utföranden, i färger inspirerade av den nordiska naturen. Vackra är de också, med strukturer från olika träslag, längder och dekorer. I standardpaketet finns flera utföranden du kan välja bland.

VITVAROR MED SIEMENS
Laga mat med prisvinnare
Siemens designspråk, kvalitet och funktionalitet har fått utmärkelser från flera oberoende testinstitut. I köken i husen i Tynäs Sjöglänta installeras induktionshäll, ugn, inbyggd fläkt, kyl och frys från Siemens. Klädvårdsrummen, som har egen ingång i fyra av fem husmodeller, har tvättmaskin och torktumlare från Siemens. Ett smart och pålitligt val som underlättar vardagen.

ENERGIEFFEKTIVA ELITFÖNSTER
Lång livslängd på lågenergifönster
Elitfönster förenar hantverk och estetik med funktion och gedigenhet. De är också bäst i test-vinnare i fönster som står emot oväder, olyckor och oväsen. Husen i Tynäs Sjöglänta byggs med deras aluminiumfönster med 3-glas-isolerruta – robusta träfönster klädda med aluminium på utsidan för att motstå yttre påfrestningar.

TIDLÖST DESIGNAT KÖK
Elegant kök från Ballingslöv
Rena linjer och tidlös design med köksinredning från Ballingslöv. Som standard ingår luckan Bistro i färgerna Vit eller Pärlgrå tillsammans med en bänkskiva i laminat. Köksluckorna fungerar som handtagslösa eller med handtag från vårt utvalda sortiment. Vill du sätta en personlig prägel finns fler luckor och bänkskivor från Ballingslöv.

VACKRA OCH STARKA GOLV
Högtrycksgolv från BerryAlloc
Gjorda för att hålla en livstid – det är golven från BerryAlloc. Deras reptåliga, fuktbeständiga och koldioxidnegativa högtrycksgolv finns i flera utföranden, i färger inspirerade av den nordiska naturen. Vackra är de också, med strukturer från olika träslag, längder och dekorer. I standardpaketet finns flera utföranden du kan välja bland.

VITVAROR MED SIEMENS
Laga mat med prisvinnare
Siemens designspråk, kvalitet och funktionalitet har fått utmärkelser från flera oberoende testinstitut. I köken i husen i Tynäs Sjöglänta installeras induktionshäll, ugn, inbyggd fläkt, kyl och frys från Siemens. Klädvårdsrummen, som har egen ingång i fyra av fem husmodeller, har tvättmaskin och torktumlare från Siemens. Ett smart och pålitligt val som underlättar vardagen.

ENERGIEFFEKTIVA ELITFÖNSTER
Lång livslängd på lågenergifönster
Elitfönster förenar hantverk och estetik med funktion och gedigenhet. De är också bäst i test-vinnare i fönster som står emot oväder, olyckor och oväsen. Husen i Tynäs Sjöglänta byggs med deras aluminiumfönster med 3-glas-isolerruta – robusta träfönster klädda med aluminium på utsidan för att motstå yttre påfrestningar.

TIDLÖST DESIGNAT KÖK
Elegant kök från Ballingslöv
Rena linjer och tidlös design med köksinredning från Ballingslöv. Som standard ingår luckan Bistro i färgerna Vit eller Pärlgrå tillsammans med en bänkskiva i laminat. Köksluckorna fungerar som handtagslösa eller med handtag från vårt utvalda sortiment. Vill du sätta en personlig prägel finns fler luckor och bänkskivor från Ballingslöv.

VACKRA OCH STARKA GOLV
Högtrycksgolv från BerryAlloc
Gjorda för att hålla en livstid – det är golven från BerryAlloc. Deras reptåliga, fuktbeständiga och koldioxidnegativa högtrycksgolv finns i flera utföranden, i färger inspirerade av den nordiska naturen. Vackra är de också, med strukturer från olika träslag, längder och dekorer. I standardpaketet finns flera utföranden du kan välja bland.

VITVAROR MED SIEMENS
Laga mat med prisvinnare
Siemens designspråk, kvalitet och funktionalitet har fått utmärkelser från flera oberoende testinstitut. I köken i husen i Tynäs Sjöglänta installeras induktionshäll, ugn, inbyggd fläkt, kyl och frys från Siemens. Klädvårdsrummen, som har egen ingång i fyra av fem husmodeller, har tvättmaskin och torktumlare från Siemens. Ett smart och pålitligt val som underlättar vardagen.

ENERGIEFFEKTIVA ELITFÖNSTER
Lång livslängd på lågenergifönster
Elitfönster förenar hantverk och estetik med funktion och gedigenhet. De är också bäst i test-vinnare i fönster som står emot oväder, olyckor och oväsen. Husen i Tynäs Sjöglänta byggs med deras aluminiumfönster med 3-glas-isolerruta – robusta träfönster klädda med aluminium på utsidan för att motstå yttre påfrestningar.

TIDLÖST DESIGNAT KÖK
Elegant kök från Ballingslöv
Rena linjer och tidlös design med köksinredning från Ballingslöv. Som standard ingår luckan Bistro i färgerna Vit eller Pärlgrå tillsammans med en bänkskiva i laminat. Köksluckorna fungerar som handtagslösa eller med handtag från vårt utvalda sortiment. Vill du sätta en personlig prägel finns fler luckor och bänkskivor från Ballingslöv.

VACKRA OCH STARKA GOLV
Högtrycksgolv från BerryAlloc
Gjorda för att hålla en livstid – det är golven från BerryAlloc. Deras reptåliga, fuktbeständiga och koldioxidnegativa högtrycksgolv finns i flera utföranden, i färger inspirerade av den nordiska naturen. Vackra är de också, med strukturer från olika träslag, längder och dekorer. I standardpaketet finns flera utföranden du kan välja bland.

VITVAROR MED SIEMENS
Laga mat med prisvinnare
Siemens designspråk, kvalitet och funktionalitet har fått utmärkelser från flera oberoende testinstitut. I köken i husen i Tynäs Sjöglänta installeras induktionshäll, ugn, inbyggd fläkt, kyl och frys från Siemens. Klädvårdsrummen, som har egen ingång i fyra av fem husmodeller, har tvättmaskin och torktumlare från Siemens. Ett smart och pålitligt val som underlättar vardagen.

ENERGIEFFEKTIVA ELITFÖNSTER
Lång livslängd på lågenergifönster
Elitfönster förenar hantverk och estetik med funktion och gedigenhet. De är också bäst i test-vinnare i fönster som står emot oväder, olyckor och oväsen. Husen i Tynäs Sjöglänta byggs med deras aluminiumfönster med 3-glas-isolerruta – robusta träfönster klädda med aluminium på utsidan för att motstå yttre påfrestningar.

TIDLÖST DESIGNAT KÖK
Elegant kök från Ballingslöv
Rena linjer och tidlös design med köksinredning från Ballingslöv. Som standard ingår luckan Bistro i färgerna Vit eller Pärlgrå tillsammans med en bänkskiva i laminat. Köksluckorna fungerar som handtagslösa eller med handtag från vårt utvalda sortiment. Vill du sätta en personlig prägel finns fler luckor och bänkskivor från Ballingslöv.

VACKRA OCH STARKA GOLV
Högtrycksgolv från BerryAlloc
Gjorda för att hålla en livstid – det är golven från BerryAlloc. Deras reptåliga, fuktbeständiga och koldioxidnegativa högtrycksgolv finns i flera utföranden, i färger inspirerade av den nordiska naturen. Vackra är de också, med strukturer från olika träslag, längder och dekorer. I standardpaketet finns flera utföranden du kan välja bland.

VITVAROR MED SIEMENS
Laga mat med prisvinnare
Siemens designspråk, kvalitet och funktionalitet har fått utmärkelser från flera oberoende testinstitut. I köken i husen i Tynäs Sjöglänta installeras induktionshäll, ugn, inbyggd fläkt, kyl och frys från Siemens. Klädvårdsrummen, som har egen ingång i fyra av fem husmodeller, har tvättmaskin och torktumlare från Siemens. Ett smart och pålitligt val som underlättar vardagen.

ENERGIEFFEKTIVA ELITFÖNSTER
Lång livslängd på lågenergifönster
Elitfönster förenar hantverk och estetik med funktion och gedigenhet. De är också bäst i test-vinnare i fönster som står emot oväder, olyckor och oväsen. Husen i Tynäs Sjöglänta byggs med deras aluminiumfönster med 3-glas-isolerruta – robusta träfönster klädda med aluminium på utsidan för att motstå yttre påfrestningar.

TIDLÖST DESIGNAT KÖK
Elegant kök från Ballingslöv
Rena linjer och tidlös design med köksinredning från Ballingslöv. Som standard ingår luckan Bistro i färgerna Vit eller Pärlgrå tillsammans med en bänkskiva i laminat. Köksluckorna fungerar som handtagslösa eller med handtag från vårt utvalda sortiment. Vill du sätta en personlig prägel finns fler luckor och bänkskivor från Ballingslöv.

VACKRA OCH STARKA GOLV
Högtrycksgolv från BerryAlloc
Gjorda för att hålla en livstid – det är golven från BerryAlloc. Deras reptåliga, fuktbeständiga och koldioxidnegativa högtrycksgolv finns i flera utföranden, i färger inspirerade av den nordiska naturen. Vackra är de också, med strukturer från olika träslag, längder och dekorer. I standardpaketet finns flera utföranden du kan välja bland.

VITVAROR MED SIEMENS
Laga mat med prisvinnare
Siemens designspråk, kvalitet och funktionalitet har fått utmärkelser från flera oberoende testinstitut. I köken i husen i Tynäs Sjöglänta installeras induktionshäll, ugn, inbyggd fläkt, kyl och frys från Siemens. Klädvårdsrummen, som har egen ingång i fyra av fem husmodeller, har tvättmaskin och torktumlare från Siemens. Ett smart och pålitligt val som underlättar vardagen.

ENERGIEFFEKTIVA ELITFÖNSTER
Lång livslängd på lågenergifönster
Elitfönster förenar hantverk och estetik med funktion och gedigenhet. De är också bäst i test-vinnare i fönster som står emot oväder, olyckor och oväsen. Husen i Tynäs Sjöglänta byggs med deras aluminiumfönster med 3-glas-isolerruta – robusta träfönster klädda med aluminium på utsidan för att motstå yttre påfrestningar.

TIDLÖST DESIGNAT KÖK
Elegant kök från Ballingslöv
Rena linjer och tidlös design med köksinredning från Ballingslöv. Som standard ingår luckan Bistro i färgerna Vit eller Pärlgrå tillsammans med en bänkskiva i laminat. Köksluckorna fungerar som handtagslösa eller med handtag från vårt utvalda sortiment. Vill du sätta en personlig prägel finns fler luckor och bänkskivor från Ballingslöv.

VACKRA OCH STARKA GOLV
Högtrycksgolv från BerryAlloc
Gjorda för att hålla en livstid – det är golven från BerryAlloc. Deras reptåliga, fuktbeständiga och koldioxidnegativa högtrycksgolv finns i flera utföranden, i färger inspirerade av den nordiska naturen. Vackra är de också, med strukturer från olika träslag, längder och dekorer. I standardpaketet finns flera utföranden du kan välja bland.

VITVAROR MED SIEMENS
Laga mat med prisvinnare
Siemens designspråk, kvalitet och funktionalitet har fått utmärkelser från flera oberoende testinstitut. I köken i husen i Tynäs Sjöglänta installeras induktionshäll, ugn, inbyggd fläkt, kyl och frys från Siemens. Klädvårdsrummen, som har egen ingång i fyra av fem husmodeller, har tvättmaskin och torktumlare från Siemens. Ett smart och pålitligt val som underlättar vardagen.

ENERGIEFFEKTIVA ELITFÖNSTER
Lång livslängd på lågenergifönster
Elitfönster förenar hantverk och estetik med funktion och gedigenhet. De är också bäst i test-vinnare i fönster som står emot oväder, olyckor och oväsen. Husen i Tynäs Sjöglänta byggs med deras aluminiumfönster med 3-glas-isolerruta – robusta träfönster klädda med aluminium på utsidan för att motstå yttre påfrestningar.

TIDLÖST DESIGNAT KÖK
Elegant kök från Ballingslöv
Rena linjer och tidlös design med köksinredning från Ballingslöv. Som standard ingår luckan Bistro i färgerna Vit eller Pärlgrå tillsammans med en bänkskiva i laminat. Köksluckorna fungerar som handtagslösa eller med handtag från vårt utvalda sortiment. Vill du sätta en personlig prägel finns fler luckor och bänkskivor från Ballingslöv.

VACKRA OCH STARKA GOLV
Högtrycksgolv från BerryAlloc
Gjorda för att hålla en livstid – det är golven från BerryAlloc. Deras reptåliga, fuktbeständiga och koldioxidnegativa högtrycksgolv finns i flera utföranden, i färger inspirerade av den nordiska naturen. Vackra är de också, med strukturer från olika träslag, längder och dekorer. I standardpaketet finns flera utföranden du kan välja bland.

VITVAROR MED SIEMENS
Laga mat med prisvinnare
Siemens designspråk, kvalitet och funktionalitet har fått utmärkelser från flera oberoende testinstitut. I köken i husen i Tynäs Sjöglänta installeras induktionshäll, ugn, inbyggd fläkt, kyl och frys från Siemens. Klädvårdsrummen, som har egen ingång i fyra av fem husmodeller, har tvättmaskin och torktumlare från Siemens. Ett smart och pålitligt val som underlättar vardagen.

ENERGIEFFEKTIVA ELITFÖNSTER
Lång livslängd på lågenergifönster
Elitfönster förenar hantverk och estetik med funktion och gedigenhet. De är också bäst i test-vinnare i fönster som står emot oväder, olyckor och oväsen. Husen i Tynäs Sjöglänta byggs med deras aluminiumfönster med 3-glas-isolerruta – robusta träfönster klädda med aluminium på utsidan för att motstå yttre påfrestningar.
Det sitter i detaljerna
Det sitter i detaljerna
Standardutrustningen för husen i Tynäs Sjöglänta är utvald för att ge dig en bekväm och hållbar vardag. Stilrent, slitstarkt och energieffektivt.
Ytskikt och fast inredning
Dörrar och fönster
Energi
Kök
Badrum
Ytskikt och fast inredning
Dörrar och fönster
Energi
Kök
Badrum
Ytskikt och fast inredning
Dörrar och fönster
Energi
Kök
Badrum
Forma hur ditt
hemma känns.
Forma hur ditt hemma känns.
Forma hur ditt
hemma känns.
Det handlar inte bara om kvadratmetrar och planlösningar. Det handlar om skor som sparkas av i hallen, att gå till morgondoppet på två minuter och se kvällssolen lysa in genom köksfönstret medan middagen puttrar på spisen. Det handlar om ett hem där du ska trivas. Länge. Köper du ett hus i Tynäs Sjöglänta kan du göra det till ditt. Hur känner du dig hemma?



Hitta platsen för ditt paradis
Hitta platsen för ditt paradis
Omgiven av Vänern, med skogen runt hörnet och kvällssol som sveper över uteplatsen – flera lediga tomter i Tynäs Sjöglänta uppfyller de kriterierna. Vilken blir din?

Är du intresserad
av att veta mer?
amin sarvestani
amin.sarvestani@skandiamaklarna.se
070 677 76 01

Är du intresserad
av att veta mer?
amin sarvestani
amin.sarvestani@skandiamaklarna.se
070 677 76 01

Är du intresserad
av att veta mer?
amin sarvestani
amin.sarvestani@skandiamaklarna.se
070 677 76 01

Är du intresserad
av att veta mer?
amin sarvestani
amin.sarvestani@skandiamaklarna.se
070 677 76 01
Copyright © 2025 Svensk Husproduktion
Copyright © 2025 Svensk Husproduktion






Svensk Husproduktion AB, med dotterbolagen Trivselhus AB,
LB-Hus AB och Svensk Husproduktion Projekt AB är en av
Sveriges största småhustillverkare.
Sedan starten 2012 har Svensk Husproduktion sakta byggts upp och blivit ett av Sveriges ledande husföretag. Vi arbetar för långsiktiga relationer med kunder, samarbetspartners och leverantörer. Vi ska bygga hus som varar i generationer, med smarta lösningar och hållbara material.
Svensk Husproduktion AB, med dotterbolagen Trivselhus AB, LB-Hus AB och Svensk Husproduktion Projekt AB är en av
Sveriges största småhustillverkare.
Sedan starten 2012 har Svensk Husproduktion sakta byggts upp och blivit ett av Sveriges ledande husföretag. Vi arbetar för långsiktiga relationer med kunder, samarbetspartners och leverantörer. Vi ska bygga hus som varar i generationer, med smarta lösningar och hållbara material.